La thématique des petits espaces m'est chère. C'est un point que j'aime traiter tant au niveau de la décoration qu'au niveau de l'aménagement. Jusqu'à présent, j'ai eu l'occasion de vous proposer des articles conseils, des articles inspirations. Sur le blog, je n'avais jamais pris le temps de vous proposer des articles avec plans en 2 dimensions. C'est donc la bonne occasion pour commencer! Et on va s'intéresser aujourd'hui au salon. Pour une pièce principale, légalement, sa superficie doit être de 9m2. Même si on lit souvent qu'il faille 20m2 pour qu'un salon soit agréable et confortable, on n'a pas forcément le choix quand on est en location ou quand on vit en appartement. Il peut y avoir des avantages à avoir un petit salon. Par exemple, on a vite le sentiment d'un espace cosy. Mais avant la décoration, il y a l'agencement. Je vous propose ici 3 séries de plans avec 3 formes différentes: un salon rectangulaire, un salon carré et un salon en L. Cela va nous permettre de voir les différentes possibilités quant à l'agencement des meubles et surtout le type de meubles choisir pour créer un espace de vie confortable mais pas surchargé.
A propos des plans ci-dessous:
Ils sont assez sommaires et épurés. C'est volontaire. Je n'ai pas mis d'éléments décoratifs volontairement. Ce n'est pas le point ici. L'idée est de vous montrer la disposition des meubles, l'encombrement de certains meubles par rapport à d'autres dans un petit espace, ainsi que les différentes possibilités qui s'offrent à vous.
J'ai choisi de mettre une porte qui s'ouvre vers l'intérieur, une à deux fenêtres doubles avec des radiateurs en dessous. C'est généralement comme cela que ça se présente. La taille des meubles est indiquée sur au moins un plan pour chaque forme de salon. Et si ce n'est pas indiqué sur le plan et que la taille diffère des autres plans, je le préciserai.
Votre soutien me permet de créer plus. Rejoignez les mécènes du blog pour plus d'inspirations déco et des récits de voyage exclusifs. Par ailleurs si 1% des lecteur•rice•s du blog soutenaient financièrement le blog, il pourrait ne plus y avoir de publicité ici.
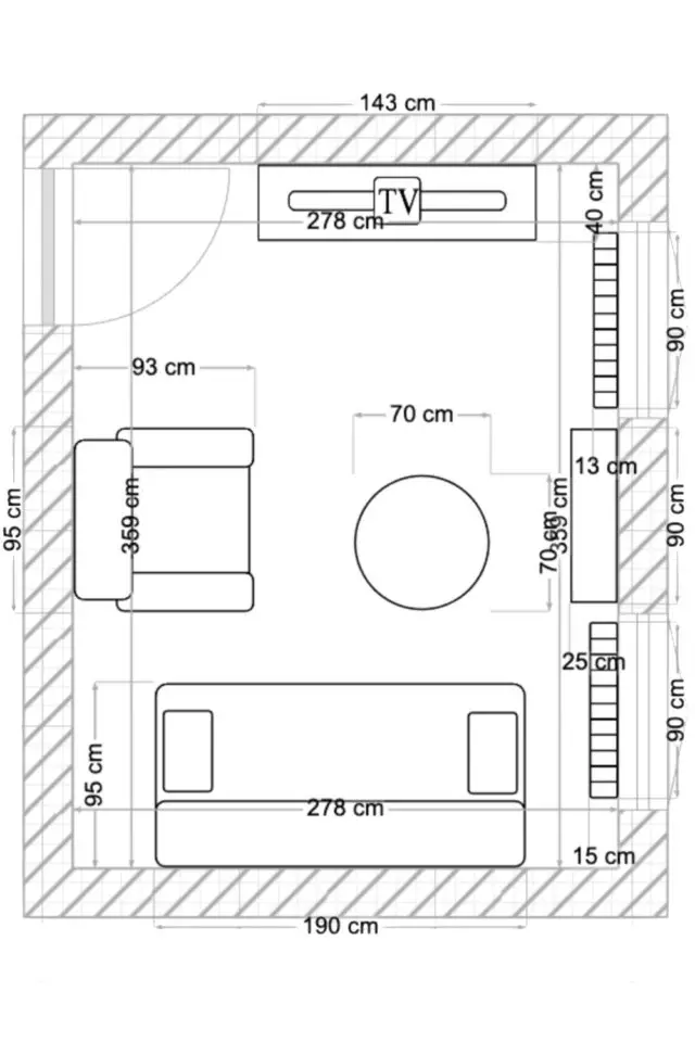
Plan - Aménager un salon rectangulaire de 10m2
Les salons rectangulaires sont sûrement les plus courants. Vous verrez que peu importe la forme de la pièce de vie, je n'ai jamais positionné l'écran de télévision en face d'une fenêtre. Pourquoi? Tout simplement parce que la lumière extérieure peut se refléter dans l'écran et vous empêcher de voir l'image. Dans le même esprit, il est préférable d'éviter de positionner le canapé directement face aux fenêtres pour ne pas être ébloui(e). Toujours dans un soucis de confort, il est préférable de ne pas placer la télé juste à côté d'un radiateur. Pas sûre que votre appareil apprécie la chaleur.
La première série de plans (ci-dessus) est composée d'un meuble TV, un canapé 2 places, un fauteuil, une bibliothèque et une table basse ronde. Le meuble TV est placé en face de la porte. En arrivant dans la pièce, on a une vue dégagée - pas encombrée par des meubles imposants. En face se trouvent le canapé, le fauteuil et la table basse. La bibliothèque quant à elle trouve sa place sur le pan de mur entre les 2 fenêtres. J'aime bien l'idée d'optimiser le mur entre les deux fenêtres pour créer du rangement. Ca peut être une bibliothèque comme un meuble bas.
Sur les deux autres propositions, j'ai voulu vous montrer l'encombrement des alternatives. La première alternative c'est la forme de la table basse. Sur les premiers plans, j'ai choisi une petite table basse de 70 cm de diamètre alors que sur celui juste au dessus, c'est une table basse rectangulaire. Elle est certes plus grande que la table ronde mais elle est aussi plus encombrante. Un modèle rond ou une forme organique casseront aussi l'effet trop cubique du mobilier tout en créant un sentiment plus spacieux au coeur du salon.
L'autre alternative, c'est de choisir un canapé d'angle à la place du combo canapé droit + fauteuil. Ici, c'est un canapé de 240cm. Il en existe des plus petits mais je reviendrai après sur ce point. Je sais que le canapé d'angle est apprécié de beaucoup de monde. Il y a un côté confortable qui n'est pas à négliger. Cependant, il est bien plus encombrant qu'un canapé droit.
A lire aussi: Où trouver un canapé convertible à moins de 500€?

theeverygirl.com 
instagram.com 
apartmenttherapy.com






Plan 2D - Agencer un salon carré de 10m2
Passons au salon carré. C'est probablement la forme de salon qui rend l'espace le plus tassé. Sur les premiers plans, j'ai placé le meuble télé sur même mur que la porte. Cela laisse plus de place sur le mur en face pour le canapé. Il y a moins de contraintes quant aux dimensions de ce dernier. J'ai aussi choisi un canapé d'angle. Il est plus "acceptable" de le coller contre un mur alors que pour un canapé droit, il est conseillé de laisser un espace de chaque côté pour éviter l'effet tassé / étriqué. Avec cet agencement de meubles, quand on entre dans la pièce, on a un espace sensiblement vide et vue sur le canapé. Rien ne vous empêche de placer un guéridon ou un petit meuble d'appoint dans l'angle face à la porte. Ce format carré invite assez au minimalisme je trouve. Rien que sur les plans on se rend compte qu'on peut vite avoir l'impression d'être encombré.
A lire aussi: Minimalisme & petit logement
Pour les alternatives, je vous propose d'abord d'inverser le meuble TV et le canapé d'angle. J'ai du modeliser un canapé plus petit (170cm) que sur les autres plans. Le canapé initial ne passait pas, il n'était plus possible de fermer la porte. Sur le mur en face, il y a le meuble TV. J'ai placé une bibliothèque à côté pour qu'en entrant dans la pièce on ne voit pas qu'un meuble télé, seul. C'est un peu triste.
Autre possibilité: un canapé droit avec un fauteuil. Si c'était chez moi, je ne mettrai pas le fauteuil qui encombre l'espace de passage (et on ne vit qu'à deux donc un canapé suffit). Comme on a déjà pas mal de meubles, j'ai préféré une table ronde plus légère qu'une table rectangulaire.

blog.mybespokeroom.com 
bhg.com 
apartmenttherapy.com


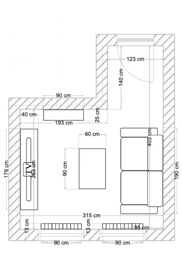
Plan - Quelles solutions pour meubler un petit salon en L?
Avant de commencer cet article, je pensais que le salon en L allait être le plus relou à aménager, le plus compliqué. Au final, c'est peut-être ce qui a été le plus facile pour moi. Même si on perd un peu de place avec le renfoncement, généralement c'est là où se trouve la porte. On n'a donc plus besoin de composer avec cette porte. Pour la première implantation, j'ai choisi des meubles classiques: un canapé droit, une table basse rectangulaire, un meuble télévision. En entrant, on voit le côté du canapé uniquement. Il y a un espace nécessaire entre le mur et le canapé pour ne pas le coller au radiateur. J'ai ajouté une bibliothèque / un buffet bas sur le mur en face des fenêtres. C'est un plus pour le rangement et normalement cela n'encombre pas l'espace de passage.
Pour les alternatives quant à l'aménagement d'un petit salon en L de 10m2, j'ai inversé le meuble télé et le canapé. L'écran se trouve en face de la porte. Personnellement, je ne suis pas fan mais c'est parce que je ne suis pas fan tout court de la télévision. Ce n'est pas la première chose que je souhaite voir en entrant dans le salon. Le côté intéressant, c'est que cela laisse la possibilité de mettre un petit canapé d'angle. Il va sembler imposant dans la pièce mais il va aussi créer un fort sentiment douillet. C'est une solution très cosy. Plus aéré, le canapé droit. A choisir, je préfère le canapé droit au canapé d'angle. Même si j'adore les univers cosy, j'aime surtout avoir le sentiment de place. Il est possible de mettre un petit meuble entre la porte et le meuble télé. Il faut juste veiller à ce qu'il n'entrave pas l'ouverture de la porte.

architecturaldigest.com 
Monster In Love Déco via Pinterest 
blog.westelm.com




Guides déco: meublez et aménagez facilement votre salon
Pour plus d'inspirations déco au quotidien (pour le salon mais pas que!) rejoignez moi sur Pinterest et sur Threads (:
Ne perdons pas contact 🙂 Rejoignez moi sur Pinterest | Threads | la Newsletter
Vous aimez lire le blog? Vous souhaitez continuer à le lire? Devenez mécène sur Patreon et contribuez à sa survie.
A lire également
- Conseils déco | Aménager une petite entrée de 3m2 (avec plans)
- Conseils déco | Agencer une chambre adulte de 9m2 (avec plans)
- Conseil déco | Comment aménager un salon de 10m2? (avec plans)
- [Conseils déco] Comment gagner de la place sur la terrasse?
- [Conseils déco] Quelle couleur choisir pour une petite salle de bain?
- [Conseils déco] Aménager une cuisine étroite en longueur
- [Conseils déco] Quelle couleur choisir pour une petite chambre d’enfant?
Devenez mécène du blog
Soutenez mon travail sur le blog et accédez à des contreparties exclusives:
- Plusieurs centaines d'articles déco, lifestyle & voyage réservés aux abonné•e•s
- Toutes les entrées de mon side project - mon dictionnaire nomade
- Une publicité limitée sur les articles Patreon

Note: Cet article contient des liens affiliés. Ils ne changent en rien votre utilisation du blog ou des sites partenaires. Si vous passez commande via l'un de ces liens, je touche éventuellement une faible commission qui me permet d'entretenir le blog régulièrement. Merci par avance de votre soutien.


































