Cela fait un moment que je ne vous ai pas proposé d'articles autour de l'aménagement d'une petite surface avec des plans. Je me replonge dans cette thématique suite à une conversation que j'ai eu le mois passé sur Threads. Ici, la problématique est simple: une chambre de 9m2, deux enfants (de 5 et 9 ans), un lit superposé, une grande armoire et un besoin de rangement (notamment des bibliothèques). Et même si l'espace n'est pas très grand, il y a plusieurs solutions pour tout faire rentrer et créer un espace agréable pour chacun des enfants.

La newsletter du blog est sur Patreon
Devenez membre gratuitement de mon Patron pour lire toutes les newsletters du blog & recevoir une notification quand les prochaines seront en ligne.
Meubles pratiques pour aménager une petite chambre d'enfant double
Cet article est idéal pour passer en revue différentes solutions possibles en matière de mobilier afin d'aménager une petite chambre d'enfant.
Lits superposés pour gagner de la place
On commence avec les lits. Pour un gain de place, les lits superposés sont parfaits. Il est préférable de choisir des lits superposés l'un au dessus de l'autre plutôt que deux lits en perpendiculaire parce que cette dernière configuration a une plus grande emprise au sol (et donc fait perdre de l'espace). Le seul bémol avec les lits superposés c'est qu'il n'est pas possible de les placer sous la fenêtre de la chambre. Ils poseraient problème pour l'ouvrir.
Une grande ou deux petites armoires?
Pour ranger les vêtements, l'armoire fait partie des solutions. Lors de ma conversation sur Threads, il était question d'une grande armoire donc j'ai fait en sorte de la modéliser sur les plans. Cependant, il peut être intéressant de choisir deux armoires plus petites qui offrent plus de modularité et qui permettent à chacun des enfants d'avoir son propre espace de rangement.
Alternative plus légère à la table de nuit classique
Je n'ai pas modéliser de table de chevet dans mes plans. Pourquoi? Parce que l'absence de chevet peut être une solution pour avoir l'impression que la chambre est moins encombrée. Au lieu d'une table de nuit classique, pourquoi ne pas partir sur une petite étagère au niveau de chaque couchage? Et si vous n'avez pas de prises pour brancher une lampe de chevet, ce n'est pas un problème en choisissant des lampes nomades rechargeables. Visuellement, les étagères sont plus légères qu'une table de chevet classique (et ça ne coûte pas très cher à mettre en oeuvre).
Rangement des livres et jouets dans une chambre double
Et puis, il y a la question des bibliothèques et meubles de rangements pour les jouets. Même si l'idéal est de désencombrer la chambre un maximum pour que ce soit agréable pour les enfants, on ne peut pas passer au dessus de cette question de rangement. On a déjà plusieurs meubles hauts (le lit superposé + la ou les armoires). Pour une question d'équilibre visuel, il est préférable de partir sur des meubles bas qui seront plus léger.
La faible hauteur des bibliothèques offre l'opportunité de placer quelques étagères au dessus. Cependant, selon l'âge des enfants, ils n'y auront pas forcément accès. Ces étagères pour les plus jeunes sont pratiques pour mettre en hauteur les constructions de Légo / Playmobile par exemple ou quelques objets déco. En revanche, créer un mur rempli d'étagères peut être contreproductif. Cela risque d'encombrer visuellement la petite pièce.
Aménager une chambre double en jouant sur la symétrie
Toutes les surfaces ne le permettent pas. Par exemple, avec une chambre en longueur, ce n'est pas vraiment pertinent mais pour agencer la chambre des enfants, pourquoi ne pas envisager la symétrie?
Le lit est un axe intéressant pour créer deux espaces symétriques et offrir à chacun des enfants son propre univers. Quand les enfants sont jeunes, ce n'est peut être pas une priorité mais quand l'adolescence pointera le bout de son nez, il est probable que les demandes des enfants changent et qu'ils aient besoin d'avoir leur propre espace.
De chaque côté du lit, on peut trouver une armoire ou pour les plus grands un bureau. En face du lit au centre de la pièce, des meubles bas (toujours pour une question d'équilibre visuel). L'aménagement en symétrie permet également à chaque enfant d'avoir une déco qui lui est propre et qui lui plait sans avoir à l"imposer à l'autre.
Plans - comment agencer les meubles dans une chambre de 9m2 pour 2 enfants?
A propos des plans qui vont suivre: Ce ne sont que des propositions rapides pour vous faire une idée de l'emprise au sol des meubles et des espaces disponibles pour le passage et éventuellement jouer. J'ai pris deux "formes" de pièces possibles: la chambre en longueur et la chambre carrée. Il doit y avoir d'autres géométries d'espaces possibles mais ce sont les plus courantes.
Si vous êtes face à une problématique d'aménagement (pour la chambre des enfants mais pas uniquement), je vous invite à créer vos propres plans - même s'ils ne sont pas parfaits. Les plans vous permettront d'envisager votre espace d'une manière différente et peut-être trouver des solutions auxquelles vous n'avez pas pensées.
Enfin, sur mes plans, on peut croire qu'il n'y a qu'un lit. Les lits superposés vus de haut ressemblent à un lit classique d'une personne.
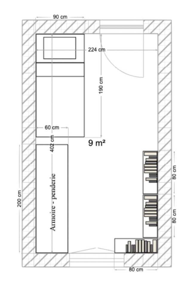
Plans pour une petite chambre tout en longueur avec des lits superposés
Pour une petite chambre en couloir qui doit accueillir deux enfants, les solutions pour placer les meubles peuvent vite être restreinte selon l'emplacement des portes, fenêtres et radiateurs. Comme je l'ai écrit plus haut, les lits l'un au dessus de l'autre ne peuvent pas être placés sous la fenêtre, vous ne pourriez plus l'ouvrir.
Une fois le lit placé - ici dans un angle à proximité de la porte de la chambre - il faut trouver la place des meubles de rangement. Personnellement, je conseillerai de mettre la grande armoire dans le prolongement du lit et des meubles bas en face de la porte. Quand vous rentrerez dans la pièce, elle semblera moins encombrée.
Je parle rarement du radiateur dans une pièce. Souvent, il est placé sous la fenêtre ce qui empêche d'y installer des meubles bas de rangement. Si c'est le cas dans la chambre de vos enfants, vous pouvez néanmoins penser à optimiser le ou les coins en face du lit notamment avec un meuble d'angle.
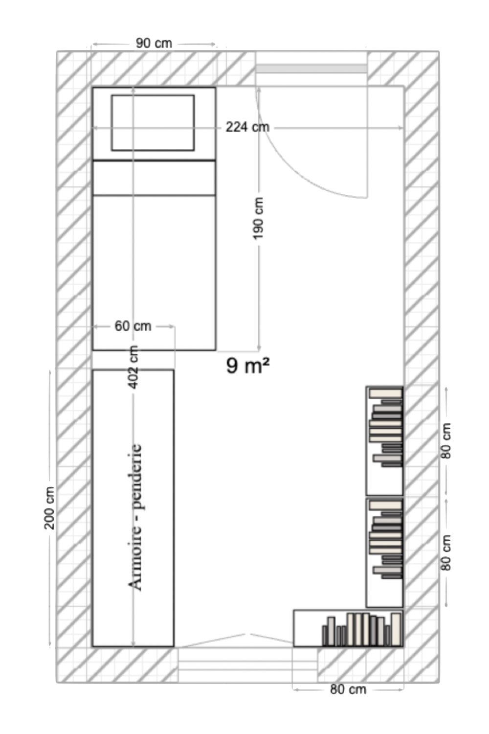
Chambre d'enfant carrée double avec des lits superposés - 3 plans pour l'aménager
Un espace carré - même s'il ne fait que 9m2 - offre un peu plus de possibilités quant à l'emplacement du lit. On peut par exemple positionner le lit au centre de la pièce pour créer cet aménagement en symétrie dont je parlais plus haut. Chaque enfant a un côté de la chambre pour lui.
Le lit en face de la porte est la solution qui offre le plus d'espace de jeux. C'est intéressant si vos enfants ont l'habitude de jouer seuls ou ensemble dans leur chambre. Si l'espace sert avant tout à dormir (et qu'ils jouent plus dans le salon par exemple), est-ce nécessaire d'avoir un grand espace vide? Je vous laisse répondre à cette question.
Dans le cas où les lits superposés font face à la fenêtre et qu'il reste un espace entre le lit et le mur, il est possible d'aménager cet espace pour créer pourquoi pas un coin lecture. Une petite bibliothèque au pied du lit, un gros coussin de sol, une lampe pour y voir clair et le tour est joué.
Plus d'idées pour aménager et décorer une chambre d'enfants double avec des lits superposés












Mes guides déco pour vous aider à aménager et décorer la chambre de votre kid
Et pour plus d'idées déco au quotidien, n'hésitez pas à me rejoindre sur Pinterest et / ou sur Threads!
A lire également
- Tapis animaux pour une chambre d’enfant nature et douce
- Une petite bibliothèque pour la chambre d’enfant | shopping
- Choisir une nouvelle armoire pour enfant | guide déco
- Sélection déco | Des patères ludiques pour la chambre d’enfant
- [Shopping déco] 40 parures de lit pour enfant
- [Shopping déco] 42 bureaux parfaits pour les enfants
- Quel bureau choisir pour votre enfant?
Devenez mécène du blog
Soutenez mon travail sur le blog et accédez à des contreparties exclusives:
- Plusieurs centaines d'articles déco, lifestyle & voyage réservés aux abonné•e•s
- Toutes les entrées de mon side project - mon dictionnaire nomade
- Une publicité limitée sur les articles Patreon




















