Il y a des moments, où j'ai des éclairs de lucidité... Et cet article est le résultat d'un de ces moments! Assez connement, je me suis rendue compte que je parlais peu de mon boulot, que ce soit ici ou dans la sphère privée. J'en parle peu parce que je bosse beaucoup et quand j'arrête, j'ai envie de penser à autre chose. J'en parle peu parce qu'en général, si je commence, je m'arrête difficilement. J'ai un boulot extra et épanouissant, mais je suis passionnée et donc j'ai toujours un peu peur de trop en parler. Et puis, je fais beaucoup de choses: je bosse sur les projets, j'écris ici et ailleurs, je suis en train de créer des formations de déco et il y a le magazine qui commence à prendre forme (il vaut mieux, c'est pour le 5 juin...)! Bref, aujourd'hui, je prends le temps de vous montrer quelques projets déco de ce début d'année.
Projet 1 - Une suite parentale au charme scandinave
Ce projet était un projet pour lequel je me suis éclatée! J'ai travaillé sur plan, car la maison était en construction. C'est une construction BBC, très atypique puisque mes clients la font construire sur un blockhaus. Là, il est question de la suite parentale à l'étage. Et elle est composée d'une chambre et d'une salle de douche. On a commencé par modifier le plan initial, en ouvrant une partie de la salle de bain sur la chambre. Seuls la douche et les toilettes sont séparés, pour un minimum d'intimité. Les vasques quant à elles sont intégrées dans la chambre. Pour délimiter l'espace, j'ai travaillé les spots au plafond et j'ai créé un meuble sur mesure qui offre du rangement pour la salle de bain mais aussi un ensemble de tête de lit pour la chambre.
La déco est épurée et chaleureuse. Le bois est omniprésent pour réchauffer le blanc des murs, mais aussi comme un fil conducteur dans l'ensemble de l'espace. Les luminaires côté chambre sont des luminaires d'appoint, pour une ambiance feutrée le soir et en contraste avec les sources de lumière de la salle de bain qui sont en hauteur.
Projet 2 - Un coaching pour aménager un nouveau logement
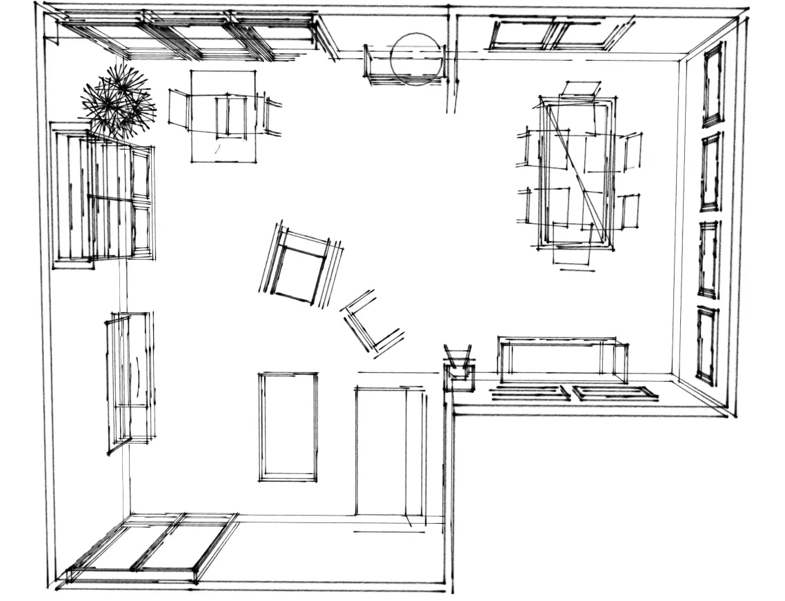
Ce second projet est un peu plus récent. Il date d'il y a quelques semaines. C'est les parents d'une de mes anciennes clientes qui avaient besoin de moi. Ils déménagent bientôt et ils ne savaient pas comment disposer les meubles dans leur nouveau logement. Ils souhaitaient aussi que la décoration soit différente de celle existante, qu'ils aient le sentiment d'être chez eux vraiment.
J'ai commencé à travaillé sur la déco à proprement dit: les couleurs, les matières, les luminaires... Et ensuite, j'ai travaillé sur la disposition des meubles pour leur permettre d'avoir un choix. Caser tous les meubles étaient un défi de taille. Mais j'ai réussi à leur offrir 3 propositions d'agencement différentes. Ils ne s'attendaient pas à ce que je trouve une place pour l'imposante bibliothèque et pourtant à chaque fois, dans chacune des propositions, elle avait une place. Et ils étaient très contents de pouvoir la garder!
Actuellement, j'ai 4 projets en cours dont deux que je vais finaliser dans la journée. Ensuite je vais commencer une salle de bain où il faut intégrer une douche dans un petit espace tout en gardant la baignoire. Et la déco d'un rez de chaussée d'une Malouine (une maison typique de Dunkerque, avec beaucoup de charme) avec un salon, une salle à manger et une petite véranda.


















Bonjour!!!
Je découvre ton blog via Apartment Therapy ( yessss! La claaaasse!).
J’aime !
Hop dans mes signets!!!
Au plaisir de te lire!!
Abi
Bonjour Abi,
Je suis contente que mon univers te plaise 😉
A très vite et belle journée!